ALOE - Maison 2 chambres
195 000 €
Maison de Caractère 2 Chambres avec Terrasse et Patio Privés
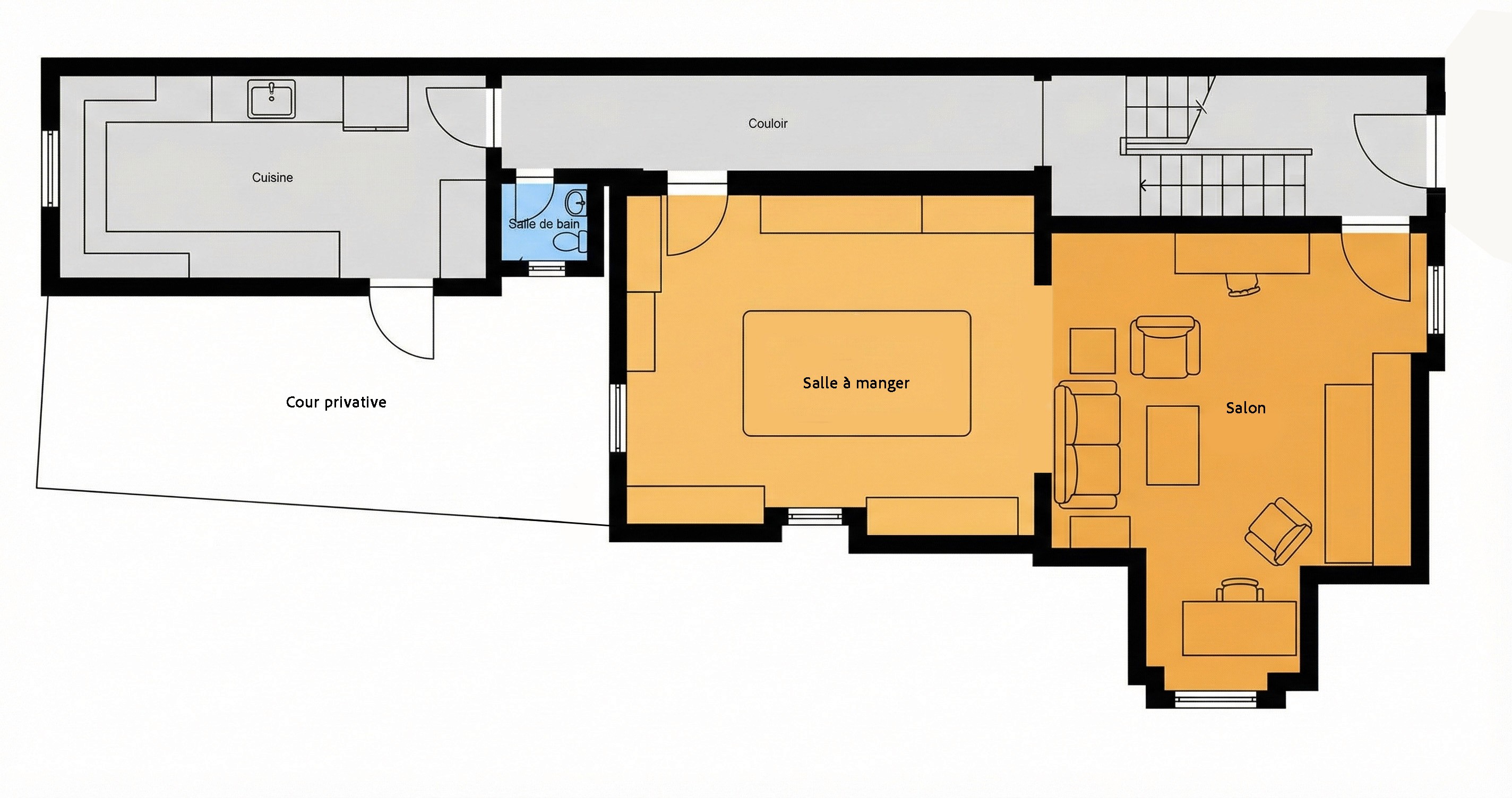
Imaginez votre futur refuge dissimulé derrière les façades animées du centre de Liège. Située en retrait de la voirie, au sein de l’îlot paisible de la Résidence Botanique, cette maison unifamiliale de 95 m² (surface habitable) vous offre une opportunité rare : le calme absolu d’un intérieur d’îlot verdoyant combiné au dynamisme de la Rue Saint-Gilles.
Un potentiel unique à révéler
Bien que quelques travaux de rafraîchissement soient à prévoir pour la remettre au goût du jour, cette maison possède un potentiel exceptionnel pour devenir une perle urbaine. Son agencement invite à la créativité :
Rez-de-chaussée traversant : Un vaste séjour de 30 m² et une cuisine semi-équipée s’ouvrant directement sur votre cour (patio) privative. Imaginez vos petits-déjeuners au calme, à l’abri des regards.
Espaces extérieurs rares : En plus du patio, profitez d'une terrasse privée sans vis-à-vis et d'un jardin orienté plein sud, un véritable luxe en plein centre-ville.
Espace nuit à l'étage : Deux grandes chambres confortables (14 m² et 20 m²) et une salle de bain avec baignoire.
Sous-sol : Deux caves spacieuses pour un stockage optimal.
Un emplacement stratégique et convoité
Vivre au 158 Rue Saint-Gilles, c’est choisir une qualité de vie incomparable :
À quelques pas du Jardin Botanique pour vos moments de détente.
À proximité immédiate du campus HEC Liège, garantissant une attractivité locative forte.
Accès direct aux commerces, écoles et transports en commun liégeois.
Caractéristiques techniques et rentabilité
Ce bien repose sur des bases techniques saines :
Électricité conforme et chauffage central individuel au gaz.
Performance énergétique : Classe G (numéro : 20250218008042).
Atout investisseur : Actuellement louée 650 €/mois (+ 25 € de provision d’eau), cette maison offre une rentabilité stable et un fort levier de valorisation après travaux.
Informations légales :
Surface de plancher chauffée : 116 m² (selon certificat PEB).
Consommation spécifique : 562 kWh/m².an.
















